VENDITA APPARTAMENTO - GOITO - MONTEBELLO LIVORNO

                                                                       
Goito - Montebello
codice riferimento: Rif.4447

  Condividi   Condividi

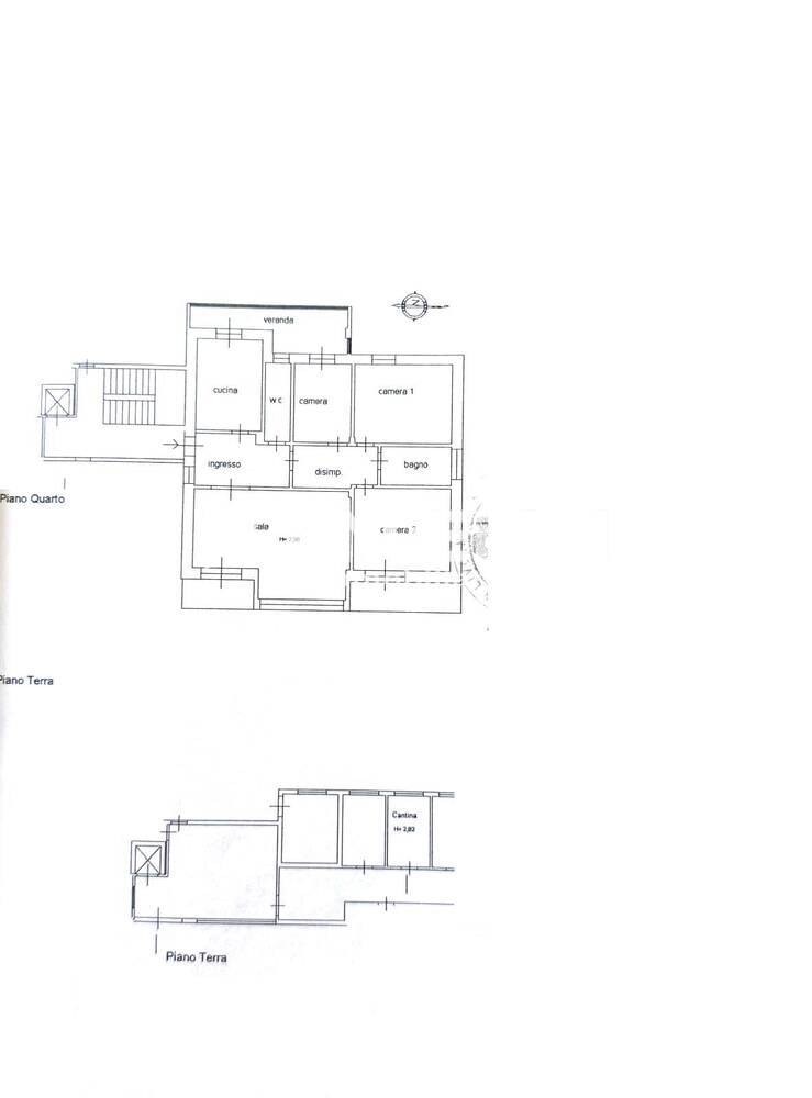
Rif. 4447 NOSTRA ESCLUSIVA VIA GOITOIn una delle zone più ricercate e tranquille di Livorno, proponiamo ampio e luminoso appartamento posto al quarto piano di un elegante condominio dotato di ascensore. L’immobile di ampia metratura è stato completamente ristrutturato, è composto da un Salone doppio servito da spazioso balcone, perfetto per momenti di relax e convivialità, Cucina abitabile con grande balcone verandato ad uso lavanderia, la zona notte comprende 3 CAMERE da letto, di cui 2 matrimoniali, 2 bagni finestrati di cui uno ristrutturato recentemente, entrambi comodi e funzionali, ulteriori balconi che donano luce naturale agli ambienti. Conclude la proprietà un POSTO AUTO assegnato all'interno del condominio ed una CANTINA. Il riscaldamento è centralizzato. (classe G - 179,54) La richiesta è di euro 445.000




2 bagni, 3 o più camere, Ascensore, Balconi, Cantina, Posto auto, Salone doppio, Termocentrale.
 
 
Piano: 4/5
Superficie: 167 mq
Classe: G
Ipe: 179,54 kwm2
Condominio: € 180,00
Prezzo: € 445.000,00


Torna alla ricerca Richiedi informazioni