VENDITA APPARTAMENTO - REDI - CALZABIGI - MAMELI LIVORNO

                                                     
Redi - Calzabigi - Mameli
codice riferimento: Rif.4475

  Condividi   Condividi

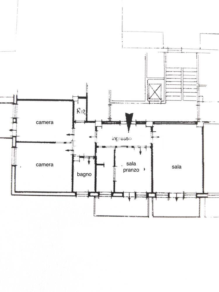
Rif. 4475 PAGANUCCI IN ESCLUSIVA - In ottima posizione, in signorile condominio dotato di ascensore, proponiamo elegante appartamento con affacci sul verde. L'immobile si presenta molto luminoso e ben distribuito, composto da un ingresso, spaziosa Sala con ampio balcone, cucinotto con finestra sala pranzo con altro balcone e cucinotto a vista con finestra, disimpegno, 2 CAMERE MATRIMONIALI di cui una con balcone, bagno con finestra e ripostiglio (reale possibilità di realizzare secondo bagno). Spazio comune custodito con accesso da passo carrabile per posti moto e bici. Il riscaldamento è centralizzato con valvole termo statiche. (classe F) La richiesta è di euro 230.000




1 bagno, 2 camere, Ascensore, Balconi, Cucina, Posto moto e bici, Sala, Termocentrale.
 
 
Superficie: 100 mq
Classe: G
Condominio: € 120,00
Prezzo: € 230.000,00


Torna alla ricerca Richiedi informazioni